Geräumige 3-Zimmer-Mietwohnung mit 63,76m² in Kapfenberg!

Warmmiete 639,00 €
Gesamtmiete 639,00 €
Zimmer 3
Schlafzimmer 2
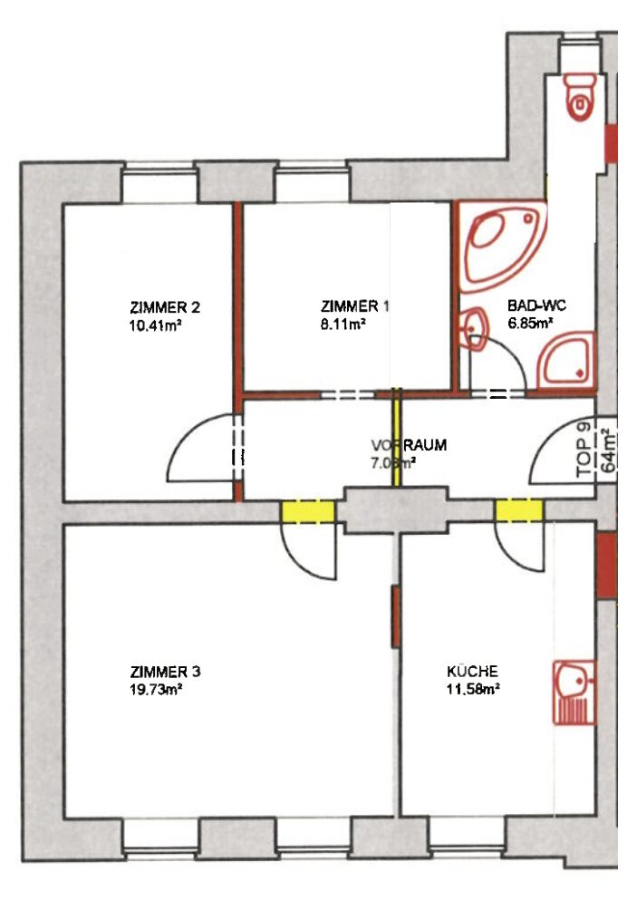
Wohnfläche ca. 63,76 m²

Objektbeschreibung

Entdecken Sie Ihr neues Zuhause in dieser gepflegten 3-Zimmer-Wohnung mit rund 63,76 m² Wohnfläche. Die Immobilie überzeugt durch eine praktische Raumaufteilung und ein einladendes Wohnambiente.

Die Wohnung bietet Ihnen:
- 3 getrennt begehbare Zimmer
- eine funktionale Küche
- ein Badezimmer mit zeitgemäßer Ausstattung
- ein Kellerabteil für zusätzlichen Stauraum
- einen Außenstellplatz direkt vor dem Haus

Die Ausstattung ist zweckmäßig und gepflegt, sodass Sie die Räume ganz nach Ihren Vorstellungen gestalten können. Beheizt wird die Wohnung über eine Gas-Zentralheizung, die für angenehme Wärme in allen Jahreszeiten sorgt.

Die Lage in Kapfenberg vereint Ruhe und zentrale Erreichbarkeit – Geschäfte des täglichen Bedarfs sowie öffentliche Verkehrsmittel sind bequem erreichbar.

Nutzen Sie diese Gelegenheit und vereinbaren Sie noch heute einen Besichtigungstermin!

Weitere Beschreibung

Die Miete setzt sich wie folgt zusammen:
Miete Netto EUR 400,00 + 10% USt. = EUR 440,00,-
Betriebskosten Netto EUR 180,91 + 10% USt. = EUR 199,-

Gesamtmiete Brutto inkl. USt. = EUR 639,00,-

Der guten Ordnung halber weisen wir darauf hin und halten fest, dass wir für den Auftraggeber (Vermieter) tätig werden. Ein Maklervertrag mit dem wohnungssuchenden Mieter kommt nicht zustande, weswegen der Mieter auch bei erfolgreicher Vermittlungstätigkeit nicht zur Zahlung einer Provision verpflichtet ist.

Irrtümer und Änderungen vorbehalten!
Alle hier veröffentlichen Informationen basieren auf den uns von dem Abgeber/ der Abgeberin zur Verfügung gestellten Informationen und wurden nicht selbst erhoben.

Bitte beachten Sie, dass wir aufgrund der Nachweispflicht gegenüber dem Abgeber/ der Abgeberin nur Anfragen mit vollständiger Angabe des Namens, der Anschrift und der Telefonnummer bearbeiten können.

Weiters besteht ein wirtschaftliches Naheverhältnis mit dem Abgeber/der Abgeberin!

Standort
8605 Kapfenberg
Wohnfläche
ca. 63,76 m²
Anzahl Zimmer
3
Anzahl Badezimmer
1
Anzahl Stellplätze
1
Verfügbar ab
SOFORT
Haustiere erlaubt
Ja
Objekttyp
Wohnung
Nutzungstyp
Wohnen
Verfügbarkeit
Verfügbar
Vermarktungstyp
Miete
Zustand
Gepflegt
Stellplatz
Ja
Ausstattung
Standard
WG geeignet
Ja
Dusche
Ja
Einbauküche
Ja
Parken im Freien
Ja
Keller
Ja
Abstellraum
Ja

Hier befindet sich die Unterkunft

Sie sehen gerade einen Platzhalterinhalt von Google Maps. Um auf den eigentlichen Inhalt zuzugreifen, klicken Sie auf die Schaltfläche unten. Bitte beachten Sie, dass dabei Daten an Drittanbieter weitergegeben werden.

Mehr Informationen

Lage

Entdecken Sie die ideale Lage dieser Mietimmobilie in Kapfenberg, die nur wenige Schritte vom renommierten Industriestandort voestalpine BÖHLER Aerospace entfernt liegt. Diese strategische Positionierung bietet nicht nur eine hervorragende Anbindung an den Arbeitsplatz, sondern auch einen bequemen Zugang zu den Annehmlichkeiten der Stadt.

Kapfenberg, bekannt für seine malerische Umgebung und sein lebendiges Stadtleben, bietet eine perfekte Balance zwischen urbanem Komfort und natürlicher Schönheit. Die Immobilie befindet sich in einer ruhigen Wohngegend, die dennoch nah an Einkaufsmöglichkeiten, Restaurants und öffentlichen Verkehrsmitteln ist.

Die Nähe zu Voest Redfeld macht diese Immobilie besonders attraktiv für Berufstätige, die Wert auf kurze Pendelzeiten legen. Darüber hinaus profitieren Sie von der hervorragenden Infrastruktur der Region, einschließlich gut ausgebauter Straßen und einer zuverlässigen öffentlichen Verkehrsanbindung.

Genießen Sie die Vorzüge dieser erstklassigen Lage und erleben Sie, wie Stadt und Natur harmonisch miteinander verschmelzen.

Erstellt am22.01.2019
PrimärenergieträgerGas
Heizwärmebedarf (kWh/m²/Jahr)126.2 kWh/(m²·a)
Heizwärmebedarf KlasseD
Energieeffizienz2.27
Energieeffizienz KlasseD
HeizungsartZentralheizung
A+
A
B
C
D
E
F
G
H

Weitere Immobilien

Sie haben eine Immobilie zu verkaufen?

Wir bewerten Ihr Immobilie schnell und kostenfrei!

Kontaktdaten

Herr Cadek, Marco