1-Zimmer-Wohnung in Kapfenberg inkl. PKW Abstellplatz

Warmmiete 389,50 €
Gesamtmiete 389,50 €
Zimmer 1
Wohnfläche ca. 32,72 m²

Objektbeschreibung

Diese Mietwohnung befindet sich in einem gepflegten Mehrparteienhaus im Kapfenberger Stadtteil Redfeld.

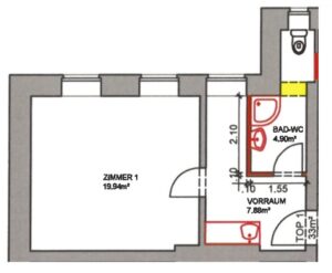
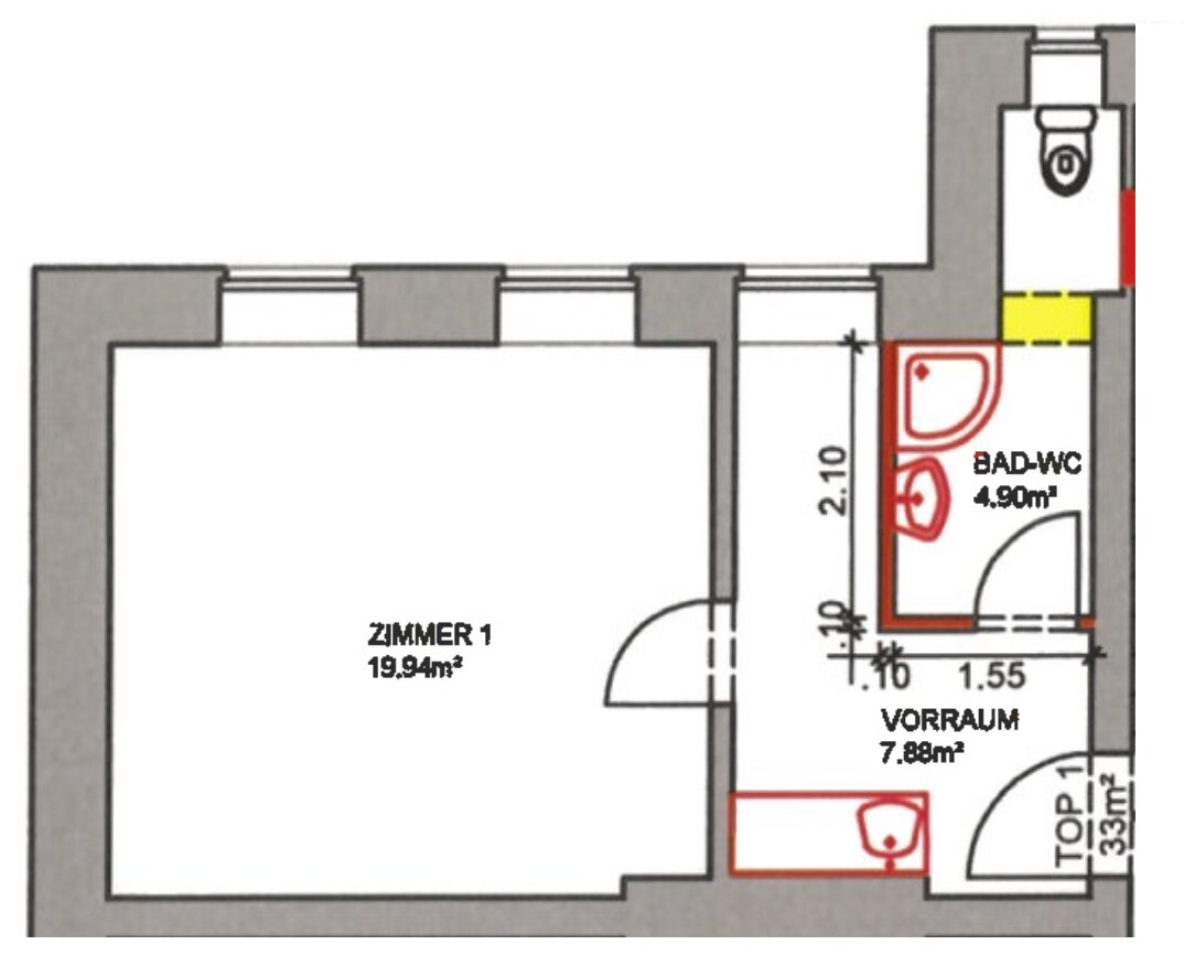
Der Grundriss umfasst eine praktische Kombination aus Vorraum und Küche mit eingebautem Küchenblock. Von hier aus gelangt man in den rund 19 m² großen Wohnbereich, der dank der großen Fensterflächen besonders hell und freundlich wirkt.

Ebenfalls vom Vorraum aus erreichbar ist das Badezimmer, ausgestattet mit Dusche, WC und Anschluss für eine Waschmaschine.

Die Beheizung der Wohnung erfolgt über eine Gas-Zentralheizung. Zusätzlich stehen ein eigener Parkplatz sowie ein Kellerabteil zur Verfügung.

Das Objekt ist wie folgt aufgeteilt:

- Wohn-Essbereich
- Vorraum-Küchenkombination
- Badezimmer mit Dusche und WC

- PKW Abstellplatz
- Kellerabteil

Weitere Beschreibung

Die Miete setzt sich wie folgt zusammen:
Miete Netto EUR 263,18 + 10% USt. = EUR 289,50
Betriebskosten Netto EUR 81,82 + 10% USt. = EUR 90,00
PKW-Betriebskosten Netto EUR 8,33 + 20% USt. = EUR 10,00

Gesamtmiete Brutto inkl. USt. = EUR 389,50

Der guten Ordnung halber weisen wir darauf hin und halten fest, dass wir für den Auftraggeber (Vermieter) tätig werden. Ein Maklervertrag mit dem wohnungssuchenden Mieter kommt nicht zustande, weswegen der Mieter auch bei erfolgreicher Vermittlungstätigkeit nicht zur Zahlung einer Provision verpflichtet ist.

Irrtümer und Änderungen vorbehalten!
Alle hier veröffentlichen Informationen basieren auf den uns von dem Abgeber/ der Abgeberin zur Verfügung gestellten Informationen und wurden nicht selbst erhoben.

Bitte beachten Sie, dass wir aufgrund der Nachweispflicht gegenüber dem Abgeber/ der Abgeberin nur Anfragen mit vollständiger Angabe des Namens, der Anschrift und der Telefonnummer bearbeiten können.

Weiters besteht ein wirtschaftliches Naheverhältnis mit dem Abgeber/der Abgeberin!

Standort
8605 Kapfenberg
Etage
1
Wohnfläche
ca. 32,72 m²
Anzahl Zimmer
1
Anzahl Badezimmer
1
Anzahl Stellplätze
1
Verfügbar ab
SOFORT
Haustiere erlaubt
Ja
Objekttyp
Wohnung
Nutzungstyp
Wohnen
Verfügbarkeit
Verfügbar
Vermarktungstyp
Miete
Baujahr
1900
Zustand
Gepflegt
Stellplatz
Ja
Dusche
Ja
Bad mit Fenster
Ja
Einbauküche
Ja
Parken im Freien
Ja
Keller
Ja

Hier befindet sich die Unterkunft

Sie sehen gerade einen Platzhalterinhalt von Google Maps. Um auf den eigentlichen Inhalt zuzugreifen, klicken Sie auf die Schaltfläche unten. Bitte beachten Sie, dass dabei Daten an Drittanbieter weitergegeben werden.

Mehr Informationen

Lage

Die Wohnung befindet sich in einem Mehrparteienhaus im Stadtteil Kapfenberg-Redfeld, in unmittelbarer Nähe zur Voestalpine.

Ein Spar-Supermarkt liegt ebenfalls ganz in der Nähe und ist bequem zu Fuß erreichbar.

Baujahr1900
Erstellt am22.01.2019
PrimärenergieträgerGas
Heizwärmebedarf (kWh/m²/Jahr)126 kWh/(m²·a)
Heizwärmebedarf KlasseD
Energieeffizienz2.27
Energieeffizienz KlasseD
HeizungsartZentralheizung
A+
A
B
C
D
E
F
G
H

Weitere Immobilien

Sie haben eine Immobilie zu verkaufen?

Wir bewerten Ihr Immobilie schnell und kostenfrei!

Kontaktdaten

Herr Cadek, Marco