Diese charmante 1-Zimmer-Wohnung befindet sich im Erdgeschoss eines gepflegten Mehrfamilienhauses in Fürstenfeld.
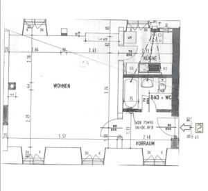
Die Wohnung verfügt über ein geräumiges Wohn-/Schlafzimmer, eine getrennte Küche, ein Gäste-WC, einen Abstellraum und einen Flur. Sie ist mit einer einfachen Ausstattung ausgestattet und bietet eine gemütliche Atmosphäre.
Die Wohnung hat eine Größe von 45,65 m² und ist ideal für Einzelpersonen oder Paare geeignet.
Wir möchten noch besonders darauf hinweisen, das es sich hier um einen Erstbezug nach einer Sanierung handelt. Genießen Sie den Komfort eines frischen Bodens, eines zeitgemäßen Badezimmers und einer topmodernen Küche. Hier erleben Sie zeitgemäßen Wohnluxus in seinen besten Facetten.
Das Objekt ist wie folgt aufgeteilt:
- Wohnzimmer / Schlafzimmer
- Küche
- Bad + WC
- Keller













